AMBASSADE SUISSE À PARIS

ANNÉE 2021

LIEU Paris, France

PROFESSEUR Stefano Moor

STATUT Projet

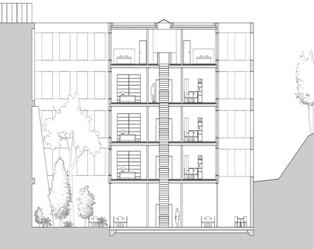
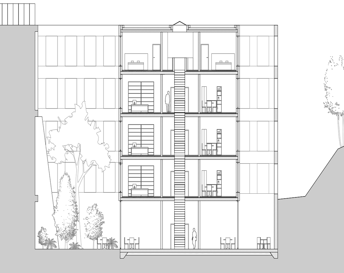
Ce projet est situé dans le 19e arrondissement de Paris. Il marque l’aboutissement de ma formation à l’HEPIA. Un gabarit très serré pour un bâtiment qui représente la Suisse à l’étranger.

À l'instar des projets des frères Aires Mateus, une façade en béton teinté reprend les lignes des bâtiments de l’arrondissement en intégrant le projet indépendant de sa peau.  À l’intérieur, peut alors se développer un jeu intéressant de plein et de vide. L’adaptation au lieu et la morphologie de ce projet ont été récompensées par la note maximale.