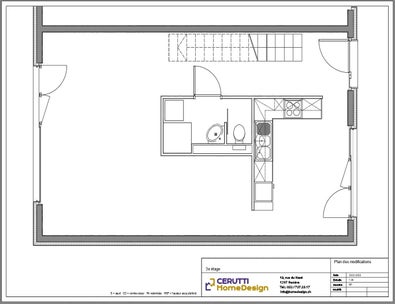
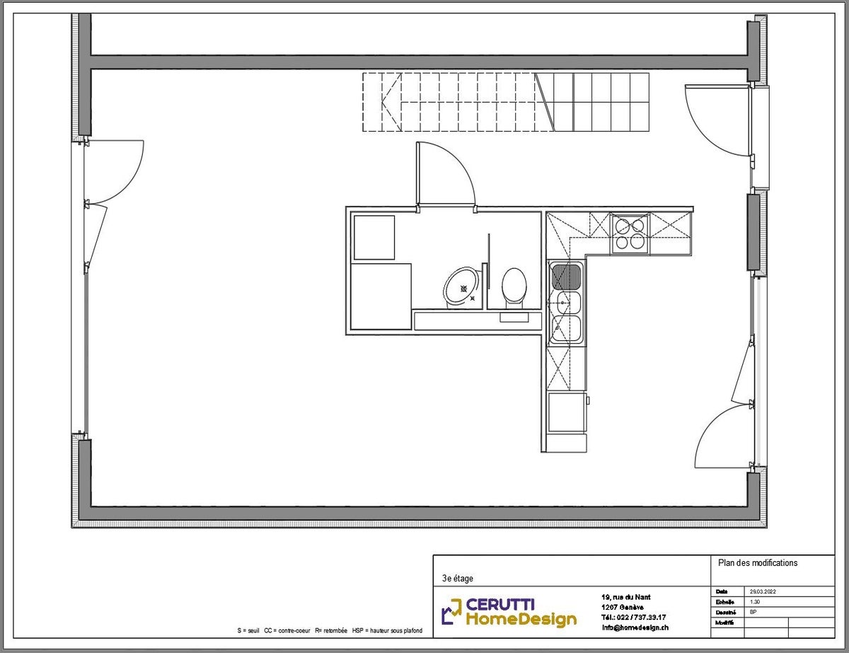
APPARTEMENT VÉSENAZ

ANNÉE 2022

CHEFFE DE PROJET Véronique Cerutti

STATUT Réalisé

CONTRIBUTION Plans d'étude - 3D client - Plans d'exécution - suivi de chantier

 

Ce projet visait à adapter le logement d'un client âgé.  La construction d’une chambre à l’emplacement de l’ancienne cuisine a posé d'intéressantes problématiques architecturales et sanitaires.