POMPE À CHALEUR

ANNÉE 2023

CHEF DE PROJET Olivier Cerutti

STATUT Réalisé

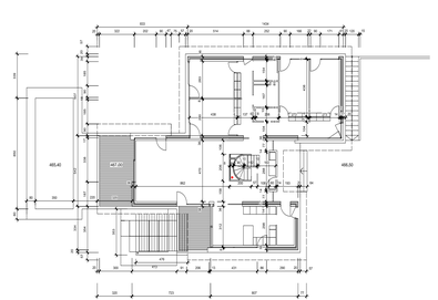
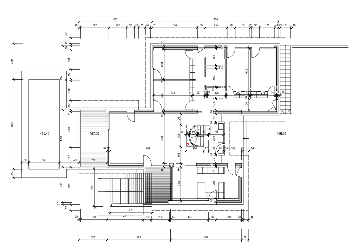
CONTRIBUTION Plans d'étude - Autorisation de construire

 

Ce petit projet m'a permis d’apprendre à compléter intégralement une APA.